株式会社コスモスイニシア(本社:東京都港区、社長:高木 嘉幸、HP:http://www.cigr.co.jp/)は、下記4プロジェクトが、公益財団法人日本デザイン振興会主催の「2016年度グッドデザイン賞」を受賞しましたので、お知らせいたします。当社では、2002年度以来15年連続の受賞となります。
≪2016年度受賞対象一覧≫
1.『イニシア練馬豊玉』 (新築分譲マンション)
練馬区豊玉南に建設された分譲マンション。住まいのカスタマイズを誰もが手軽にできる専門家のサポートとコミュニティのしくみをデザインし、生活者への意識改革を促す提案に取り組みました。
2.『編集する家』 (リノベーション住宅)
43㎡の狭小住宅のリノベーション。水回りコアと可動間仕切りの配置の工夫により、住まい手が空間の数と室を自由に設定できる編集可能な空間を提案しています。
3.『ひばりが丘フィールズ(1番街・2番街・けやき通り)』 (新築分譲マンション)
首都圏初の大規模団地「ひばりが丘団地」の団地再生事業の一環として建てられた分譲マンション。日本初の「事業パートナー方式によるPPP(パブリック・プライベート・パートナーシップ)手法」を取り入れました。
4.『まちにわひばりが丘』 (コミュニティ支援の取り組み)
「ひばりが丘団地」の住民参加型の再生プロジェクトを、大手デベロッパー4社とUR都市機構が連携して、持続性のある取組みとして展開しています。
コスモスモア 『綾瀬O邸リノベーションプロジェクト』 (蔵のリノベーション)
古くより受け継がれた建物の歴史を現代に活かしながら、内に閉ざされていた蔵を外へ。新たにコミュニティスペースのある書斎として、広く「ひらく」ことを実現しました。
今後も「Next Value For The Customer ~お客さまに求められる、次の価値をつくる~」という企業理念のもと、都市生活環境を通して安心で快適な場の創造の実現を目指してまいります。
参考資料
≪受賞対象概要≫
1.『イニシア練馬豊玉』 (東京都練馬区、集合住宅、 応募カテゴリー:住宅・住空間)
「イニシア練馬豊玉」は、「”自ら”が生活空間をカスタマイズ(デコレーション)できること」にこだわり、カスタマイズへの不安解消フォローシステムを確立。入居前からコミュニティを育むDIY講習会を開催するなど、誰でも手軽に住まいのカスタマイズができる仕組みと機会をデザインし、生活者の意識改革を促す提案に取り組んだ分譲マンションです。
【デザインのポイント】
誰にでも手軽に空間の”デコレーション”ができ、自分らしいライフスタイル創造に取り組む価値の提供
[カスタマイズへの不安解消システム]
従来の住宅のカスタマイズは大掛かりな工事、DIYの技術・知識など一般生活者には難しいイメージがありました。この不安を解消するために専門のアドバイザーによるカスタマイズのフォローシステムを確立し、「誰でも手軽にカスタマイズできる」意識改善にも注力しています。
[入居前からのコミュニティデザイン]
入居前から建物内に練習用壁面を設置し、実際の工具を使って体験講習会等のワークショップの開催や、工具無償貸出など、入居者同士が住まいをカスタマイズすることを通してコミュニティづくりもサポートしています。
【審査評価ポイント】※審査員による評価コメント
通常の集合住宅のスケルトン+インフィルの上に「カスタマイズ」という新たな層を加え、そこを住み手自身によるDIYが自由にできる仕組みとし、更にDIYをサポートする講習会や道具類の提供をフォローシステムとして明確に確立している点が評価された。
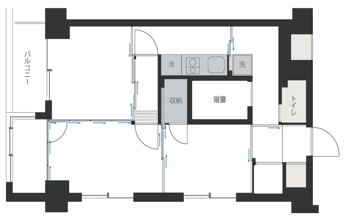
2.『編集する家』 (東京都世田谷区、リノベーション住宅、 応募カテゴリー:住宅・住空間)
「編集する家」は、住まい手が空間の数と室を自由に設定できる編集可能なリノベーション住宅です。
水回りを中央に配置することで動線を多様化し、可動間仕切りによって空間を自由に開け閉めできるようにすることで、空間の関係性や独立性を自由に設定できる、新しいインフィルの考え方を提案しています。
【デザインのポイント】
「間取りの多様化」と「動線の多様化」に対応し、住まい手が編集できる住宅のデザイン
[取組の背景]
当プロジェクトは「INITIA CLOUD」の取り組みの一つとして、世界で活躍する佐藤オオキ氏が代表を務めるデザインオフィスnendoの監修により誕生しました。
「INITIA CLOUD」では、家族構成の変化や個性の追求など、ライフスタイルが多様化する現代において、思いのままに空間を変えていくことで、暮らしが住宅に左右されず、住宅が暮らしに対応する住空間を実現します。
扉を開くと大きな空間となり、扉を閉めることでよりプライベートな空間が生まれます。扉の開閉位置を変えることでさまざまな間取りやレイアウトが可能となり、さまざまなライフスタイルに対応する空間を生み出します。ひとつのスペースにひとつの使い方だけでなく、複数の用途を持たせることができることが大きな特長です。
INITIA CLOUDについて:http://www.cigr.co.jp/pj/i-cloud/
43㎡と狭小空間でありながら空間利用の自由度と柔軟性を高める工夫
・ コアの配置と動線の多様化:水回りのコアを中央に配置することにより玄関からの動線が2パターン生まれ、動線が多様化します。
・ 可動間仕切りの配置:最大7つの空間に分割することができ、間仕切りを全て収納し空間を仕切らず1Rへ。
【審査評価ポイント】※審査員による評価コメント
43㎡という小規模な住戸の中に、多様な使い方のバリエーションを実現した住戸計画。住み手の自由度を高めるために、空間をワンルーム化するのではなく、あえてセンターコアを採用することで、動線の選択性をつくるというアイデアが効果的である。インテリアイメージは非常にシンプルでありながら、引き戸を使うことで、複雑で多様な空間を実現している。単体のリノベーションだけでなく、商品化を期待したくなる提案である。
3.『ひばりが丘フィールズ(1番街・2番街・けやき通り)』(東京都久留米市、集合住宅、 応募カテゴリー:住宅・住空間)
大和ハウス工業株式会社・株式会社コスモスイニシア・オリックス不動産株式会社の共同事業
4.『まちにわひばりが丘』 (東京都久留米市、コミュニティ支援、 応募カテゴリー:地域・コミュニティづくり/社会貢献活動)
一般社団法人まちにわ ひばりが丘・大和ハウス工業株式会社・住友不動産株式会社・株式会社コスモスイニシア・オリックス不動産株式会社・独立行政法人都市再生機構・HITOTOWA INC の共同プロジェクト
「ひばりが丘フィールズ」は、1959年に建設された首都圏初の大規模団地「ひばりが丘団地」の団地再生事業の一環として建てられた分譲マンションで、日本初の「事業パートナー方式によるPPP(パブリック・プライベート・パートナーシップ)手法」を取り入れました。
当再生事業では、コミュニティスペースやカフェ、共同菜園、カーシェアリングを備えたエリアマネジメントセンター「ひばりテラス118」※や保育施設、公園などを設けました。これらの施設利用者のコミュニティがつながる配置計画の策定や、継続的に地域のエリアマネジメントに関与することで、ハードとソフトが一体となった開発を行いました。
また、「ひばりテラス118」には、一般社団法人「まちにわ ひばりが丘」の専門スタッフが常駐し、施設の運営やイベントの開催など、さまざまな活動をサポートしています。
「まちにわ ひばりが丘」は、2020年にはエリアマネジメント全体を住民主導へ移管し、住民のみなさまが住民同士でまちをつくる未来を目指します。
※ デベロッパー4社とUR都市機構の連携のもとに誕生した一般社団法人
「ひばりが丘フィールズ」URL:https://www.daiwahouse.co.jp/mansion/kanto/tokyo/hibarigaoka/
「まちにわ ひばりが丘」URL:http://machiniwa-hibari.org/
【審査評価ポイント】※審査員による評価コメント
■ひばりが丘フィールズ
1960年頃に開発された首都圏大規模団地の再生を、PPP(パブリック・プライベート・パートナーシップ)手法により実現する挑戦的な事業の一翼を担う建替え民間マンションの事例。PPPの他の事業パートナーとの連携によるエリアマネジメントやランドスケープデザインを含む計画内容が特徴的であり、この点が特に評価された。
■「まちにわ ひばりが丘」
日本住宅公団が1959年に造成した大規模団地の住民参加型の再生プロジェクトを、大手デベロッパー4社とUR都市再生機構が連携して、持続性のある取り組みとして展開していることを高く評価した。老朽化したテラスハウスをリノベーションして、カフェや集会所のある「ひばりテラス118」を開設。そこでの収益がプロジェクトの持続性を高めている。共同農園づくりやカーシェア、各種イベントや雑誌づくりなどきめ細やかに行われていて、今後、こうした取り組みに住民からボランティアとして募った「まちにわ師」がどれだけ主体的に貢献していくか、その仕組み作りに期待したい。
コスモスモア 『綾瀬O邸リノベーションプロジェクト』 (東京都足立区、リノベーション、 応募カテゴリー:住宅・住空間)
当プロジェクトは、明治時代に建てられた木造の蔵をリノベーションにより現代社会に合わせた形に再生し、内に閉ざされていた空間を、新たにコミュニティスペースのある書斎として外に「ひらく」ことを提案しました。
【デザインのポイント】
閉じていた蔵を地域にひらき、歴史と技の継承によって人々が集う心地よい空間を実現
[快~人々が集うための快適な空間に]
人が集うための空間を心地よくするために現代の技術を活用しました。
・ 高さと水平方向への広がり…低い天井を撤去し、梁や天井をあらわにすることで、吹抜けのような空間の広がりを確保。書斎からは豊かな庭園が望めるピクチャーウィンドウを設置し、外への広がりも持たせました。
・ 光の効果・・・直接照明による、手元の明るさと空間の演出。小屋裏を美しく照らす梁上の間接照明により全体の明るさも確保しています。
・ 温熱環境・・・蔵の特徴でもあるしっくい壁や土瓦による温度調節機能を利用し、快適な空間づくり実現しました。
[継~歴史や技をその先へも受け継ぐ]
歴史を経た「もの」と「こと」を後世に伝える場をつくりました。
・ 時の記憶の宿るものを残す・・・活かす、魅せる、甦らせるをキーワードとし、壊して新しくするだけではなく歴史を経たものを守りつつも時代に合わせた形に整えました。
・ 職人の貴重な技を継承する・・・改修にあたって使用した素材はほぼ全てこの場所にあったものを加工・再利用
しており、またその再生にあたっては地元の職人技を活かしています。空間とともに、技の継承も目指しました。
[繋~繋がるコミュニティ]
お祭りや青年団など地域の行事・活動の場として、少人数での情報交換をする場として、従来の公民館のような施設
とはちがう距離感の空間は、住民のコモンスペースとして地域の中での新たな役割を担うことが期待されています。
【審査評価ポイント】※審査員による評価コメント
当プロジェクトは、もともと蔵はその性質上、閉鎖的な建築物であるが、構造物としての蔵の可能性を、外部に開いたデザインを施すことによって引き出し、活かした計画である。丁寧な改修の様子も評価された。
● 当社の過去の受賞物件 http://www.cigr.co.jp/pj/contents/supply/gooddesign/index.html
● グッドデザイン賞について ※公益財団法人日本デザイン振興会HP(http://www.g-mark.org/)から抜粋
グッドデザイン賞は、様々に展開される事象の中から「よいデザイン」を選び、顕彰することを通じ、私たちのくらしを、産業を、そして社会全体を、より豊かなものへと導くことを目的とした公益財団法人日本デザイン振興会が主催する「総合的なデザインの推奨制度」です。
その母体となったのは、1957年に通商産業省(現経済産業省)によって創設された「グッドデザイン商品選定制度(通称Gマーク制度)」であり、以来約60年にわたって実施されています。その対象はデザインのあらゆる領域にわたり、受賞数は毎年約1,200件、59年間で約43,000件に及んでいます。また、グッドデザイン賞を受賞したデザインには「Gマーク」をつけることが認められます。「Gマーク」は創設以来半世紀以上にわたり、「よいデザイン」の指標として、その役割を果たし続けています。
● グッドデザイン賞の今後のスケジュール
当社が受賞した4プロジェクトを含む本年度のグッドデザイン賞受賞デザイン全点を紹介する「グッドデザインエキシビション2016 (G展)」が、東京のデザインウィーク期間に合わせ、東京ミッドタウン(東京・六本木)、渋谷ヒカリエにて開催されます。期間中には「グッドデザイン・ベスト100」の特別展示、「グッドデザイン大賞」の投票などが実施されます。
受賞展「グッドデザインエキシビション2016(G展)」
会 場 : 東京ミッドタウン内各所(東京都港区赤坂9-7-1)、渋谷ヒカリエ8F(東京都渋谷区渋谷2-21-1)
会 期 : 2016年10月28日(金)~11月3日(木・祝)
時 間 : 10月28日(金)17:30 – 20:00
10月30日(土)~11月2日(水)11:00 – 20:00
11月 3日(木・祝)11:00 – 17:30
入場料 : 1,000円(税込・7日間共通)/中学生以下無料
主 催 : 公益財団法人日本デザイン振興会
詳細はこちら : 受賞展スペシャルウェブサイト http://www.g-mark.org/gde/2016/
以上
新着ニュース
一覧を見る
パナソニック商品を採用、洗面空間と内装・建具から住まいの価値を再定義 ~東京・大阪で異なるテーマのリノベーションを展開~
コスモスイニシアとスマイルズがリノベーションマンションを共同プロデュース 「ものが好きな、物好きのための理想の家」
都市部の孤独に寄り添う“間(ま)のある暮らし”をリノベーションで提案 ~コスモスイニシア×ヤマムラ建物再生室 共創プロジェクト第2弾~
























































































































