Worksオーダーリノベーション事例
イニシアのオーダーリノベーションの実績をご紹介します。
東京都T様邸
(オーダーリノベーション施工事例)
2025年11月 改修





Background
背景
住み慣れた環境でご夫婦のこだわりが実現でき、永住できる住まいをとの思いでご購入されたお住まいです。
Approach
アプローチ
ノイズを消して美しいラインを強調することで、家具や照明でインテリアを楽しめる、「余白のある設計」というご要望にお応えしました。また、リビングダイニングの一部の床をタイルにすることで、光や植物と共に過ごせるインナーテラスのある暮らしを実現。入れるものを決めた収納を設置、ロボット掃除機の基地もリビングダイニングの入り口に施工するなど、空間をすっきりと保つための設計を施しました。
Point
ポイント
ナチュラルな木目フローリングと穏やかな白壁に、マットグレーのペニンシュラキッチンが映えるLDK。やわらかな自然光がレースカーテン越しに広がり、ダウンライトが空間を均一に照らします。ディテールを抑えたミニマルな設えになっており、落ち着きと開放感を同時に叶えるナチュラルモダンな一邸です。


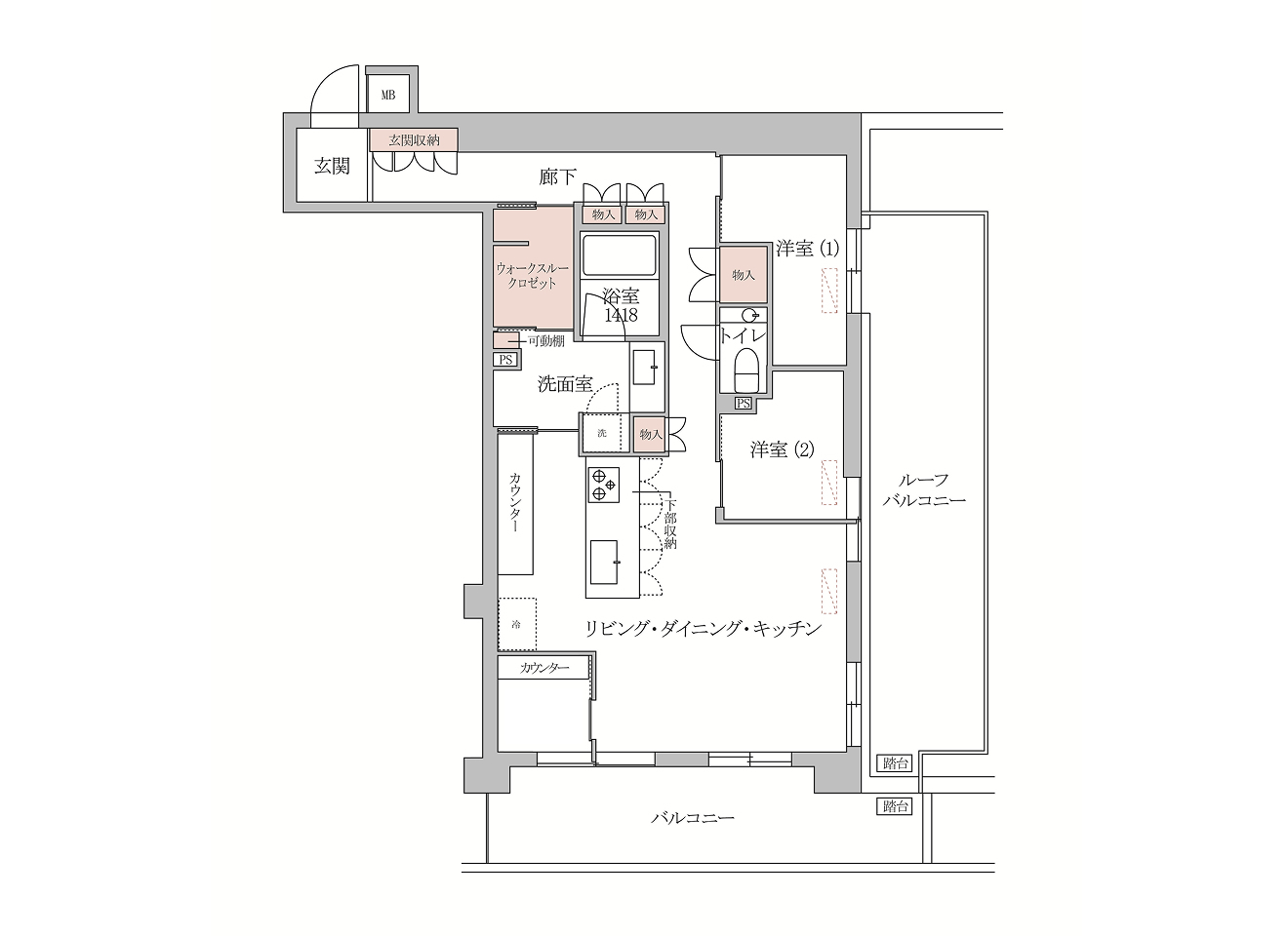
Plan
プラン
Before

After

※施工費目安は施工事例をモデルケースとしてリノベーション工事を再現した場合の概算費用であり、実際の施工費とは異なります。詳しくはお問い合わせください。











