Worksオーダーリノベーション事例
イニシアのオーダーリノベーションの実績をご紹介します。
T様邸
(オーダーリノベーション施工事例)
2024年5月 改修面積:216.3m²
工事費目安:3,310万円
施工時築年数:32年
工期:5ヶ月
家族構成:FAMILY
Contactお問い合わせ






Background
背景
ご両親のご自宅を引き継ぎ、リノベーションされた住まいです。
ご家族が快適に暮らせるよう、また来客が多いことも考慮し、リビング・ダイニングはゆとりのある空間に仕上げました。
Approach
アプローチ
独立型キッチンによる閉塞感を解消するため、対面式の広々としたカウンターキッチンをご提案。 リビング・ダイニングと一体化させることで、開放感のある空間を実現しました。
Point
ポイント
幅3mの広いカウンターキッチン、壁にパネルを施した壁掛けTVスペース、トイレ空間のクロスにこだわりました。

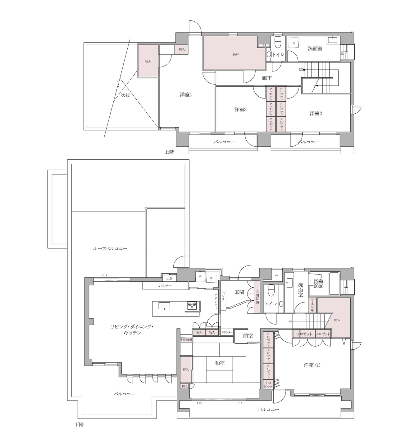
Plan
プラン
Before

After

※施工費目安は施工事例をモデルケースとしてリノベーション工事を再現した場合の概算費用であり、実際の施工費とは異なります。詳しくはお問い合わせください。












