Worksオーダーリノベーション事例
イニシアのオーダーリノベーションの実績をご紹介します。
W様邸
(オーダーリノベーション施工事例)
2024年7月 改修面積:79.92m²
工事費目安:1,390万円
施工時築年数:38年
工期:3ヶ月
家族構成:DINKS
Contactお問い合わせ






Background
背景
終の棲家として一戸建てからのお住み替え。海外生活をされていたご夫婦が、楽しみながら生活ができる空間にというご要望で、お好きなカラーやこだわりの素材を採用しリノベーションを施しました。
Approach
アプローチ
開放感のある空間をご希望された独立型キッチンは、カウンターキッチンへと変更。カウンターはR形状とし、リビング側にはリブ素材を採用。幅広のカウンター収納には、お好みのティファニーブルーの扉面材を使用しました。キッチンの床には磁器タイルを施工し、施工店・キッチンメーカー・家具店の3社が連携しながら、細部まで調整を重ねて進めました。
Point
ポイント
一部屋分の広さを確保したウォークインクロゼットを新設。
トイレは独立した空間として、ビビッドなブルーのクロスを採用し、空間に彩りを添えるアクセントとなりました。

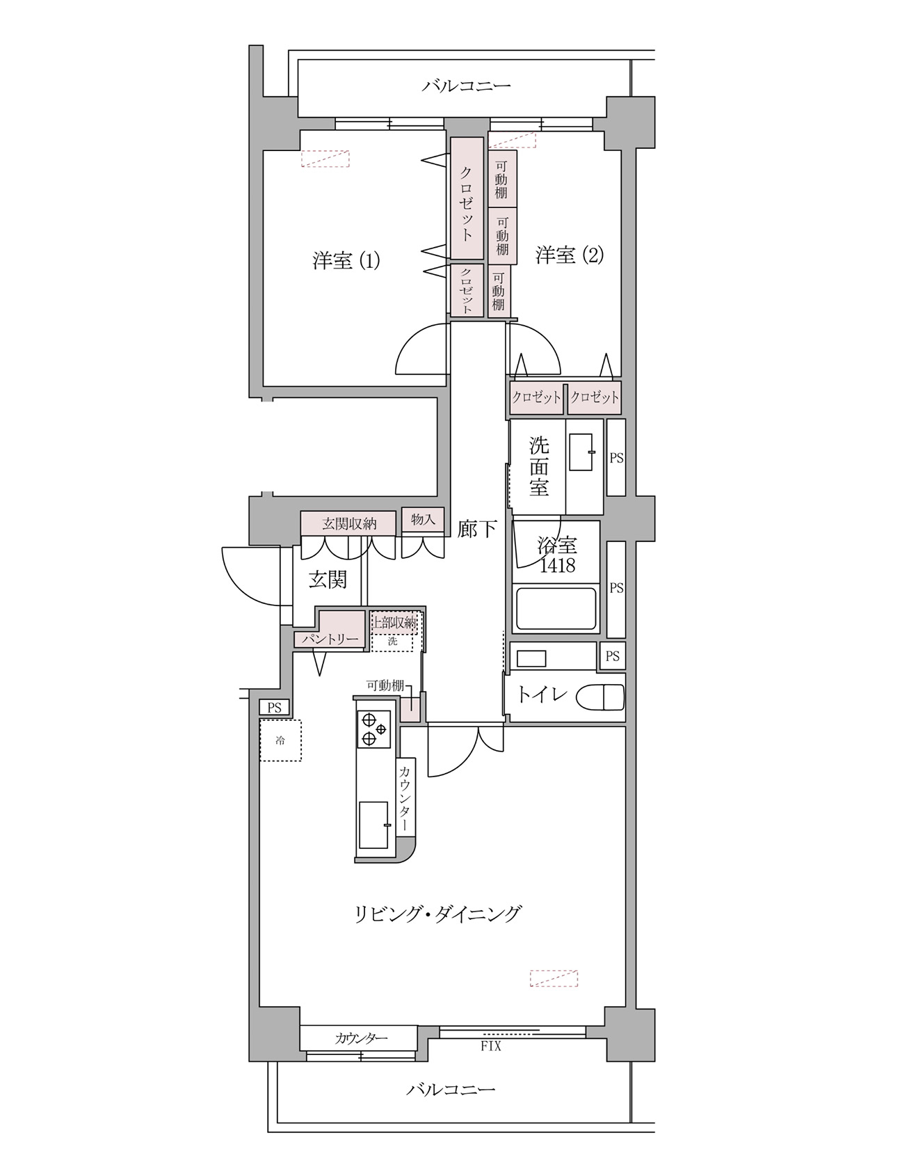
Plan
プラン
Before

After

※施工費目安は施工事例をモデルケースとしてリノベーション工事を再現した場合の概算費用であり、実際の施工費とは異なります。詳しくはお問い合わせください。












