ポートレートモード(縦置き)表示でご覧ください。

物件
エントリー
LINE登録 来場予約

image photo

image photo

PLAN

玄関を開けて広がる空間が、いつもの自分に調えてくれる。

全10タイプの多彩な間取りプランと、
8種類のテイストから無償で選べるインテリアセレクト「ホームデコレーションサービス」をご用意。
自分らしく描ける空間が、毎日の暮らしをもっと楽しみにしてくれます。

全10タイプの個性豊かなプランバリエーション

VIEW

暮らしの中に広がる、
空と街の眺め。

低層住宅街に面した立地を活かし、下層階からでもひらけた視界を確保。
空や街の風景が、季節や時間とともに移ろい、日常に豊かな開放感と彩りをもたらします。

最上階からは、東西南北それぞれにひらけた視界が広がり、晴れた日には富士山や遠くの街並みを望めることも。

WEST

WEST

NORTH

NORTH

EAST

EAST

SOUTH

SOUTH

WEST

WEST

NORTH

NORTH

EAST

EAST

SOUTH

SOUTH

WEST

WEST

NORTH

NORTH

EAST

EAST

SOUTH

SOUTH

WEST

WEST

NORTH

NORTH

EAST

EAST

SOUTH

SOUTH

眺望写真(現地13階相当の高さより撮影/2024年3月撮影)
※将来に渡っての眺望を保証するものではありません。

PLAN

東西2棟構成により、
眺望や採光条件を最大限に活かした、
多彩なプランを展開。
個性ある2LDK〜3LDKの間取りから、
ライフスタイルに沿った住まいを選べます。

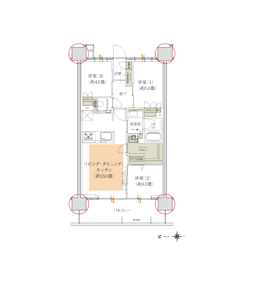
住戸配置図

住戸配置図

開放感が溢れる A type

シーズナルリビングバルコニーで、
暮らしに心地よさを感じる。

約8.7m超のワイドスパン設計と、リビングとバルコニーをシームレスにつなぐ「シーズナルリビングバルコニー」で、明るさと開放感が溢れる空間に。バルコニーにはプランターボックスを設け、リビングから四季を楽しめます。

Atype先着順・次期以降販売対象住戸
11,348万円
(7階・先着順販売住戸)
3LDK+2WIC
専有面積: 70.00m²
(約21.17坪)
  • バルコニー面積:17.23m²(約5.21坪)(2~9階)先着順・次期以降販売対象住戸
  • バルコニー面積:13.81m²(約4.17坪)(10階)次期以降販売対象住戸
POINT
  • 角住戸
  • アウトポール設計
  • FUTON収納
  • 全洋室4畳~
  • リビング・ダイニングの奥行4.0m超
  • シーズナルリビングバルコニー
  • 約8.7m超のワイドスパン設計
A TYPE
FUTON収納
画像ポインター
布団の収納に適した奥行き設計を採用。寝具や衣装ケースも無駄なく収まり、季節用品や衣類をスッキリと整理できます。
約8.7m超のワイドスパン設計
画像ポインター
リビング・ダイニング・キッチンと2つの洋室の計3部屋がバルコニーに面した設計。室内の採光・通風を確保し、心地よい空間を実現します。
シーズナルリビングバルコニー
画像ポインター
リビングとバルコニーにつながりを感じられるよう、バルコニーにウッドデッキを敷説。バルコニーの手すりにはプランターボックスを設け、日常に瑞々しい彩りが寄り添う、開放的な景色を作り出します。
概念図

概念図

  • :収納
  • :床暖房
  • :通風
  • :採光
  • :アウトポール
  • WIC : ウォークインクロゼット

〈推奨インテリアセレクト〉

Ethical自分にも環境にも優しい暮らし

生活に緑を取り込む、シーズナルリビングバルコニー。
日々の暮らしのなかで自然を大切にできる空間に。

〉〉〉詳しくはこちら

遊び心が生まれる D-D type

土間空間があるから、
暮らしに遊び心が生まれる。

バルコニーと玄関、洋室(3)の3方向とつながる土間空間は、屋内外の趣味や作業に活用できる多目的スペースです。自転車のメンテナンスや観葉植物のお手入れなど、リビングではできない趣味の時間を思いきり楽しめます。

D-Dtype先着順・次期以降販売対象住戸
10,398万円
(3階・先着順販売住戸)
3LDK+FC+土間
専有面積: 70.24m²
(約21.24坪)
  • バルコニー面積:12.16m²(約3.67坪)(偶数階)次期以降販売対象住戸
  • バルコニー面積:11.78m²(約3.56坪)(奇数階)先着順・次期以降販売対象住戸
  • セカンドバルコニー面積:4.90m²(約1.48坪)
POINT
  • 角住戸
  • アウトポール設計
  • 全洋室4畳〜
  • 土間
  • ファミリークロゼット
  • FUTON収納
  • リビング・ダイニングの奥行4.0m超
D-D TYPE
土間
画像ポインター
屋内外への出入りが便利な動線設計。収納スペースや作業スペース、趣味空間など、暮らしにあわせて使える空間です。
土間
《リビングを見渡せる》みはらしスタイル
画像ポインター
コンロの前の壁をなくし、キッチンからの景観やリビングとのつながりを感じさせるフルオープンスタイル。リビング側からもキッチン側からも美しい風景をつくりだします。
イメージイラスト

イメージイラスト

ファミリークロゼット
画像ポインター
家族の衣類や日用品を、まとめてすっきり。収納場所をひとつに集約することで、部屋の動線をシンプルにし、暮らしがさらに整います。
  • :収納
  • :床暖房
  • :通風
  • :採光
  • :アウトポール
  • FC : ファミリークロゼット
  • ※掲載の図面は偶数階になります。
    ※D-Dタイプの洋室(1)、洋室(2)は建築基準法の居室要件である採光規定 における緩和規定の適用を受けているため、床面において50ル クス以上照度を確保できる照明器具を設置する必要があります。

〈推奨インテリアセレクト〉

Self Decoration自分でカスタマイズする暮らし

使い方の自由度が高い土間にお気に入りのグッズをディスプレイ。
手に掛ける楽しさが生まれる空間に。

〉〉〉詳しくはこちら

家事が楽しくなる D-L type

家事の流れがスムーズだから、
暮らしに余白が生まれる。

洗う・干す・しまうを一か所でこなせるランドリールーム。動線の途中に収納がしっかり備わっているから、片づけや準備も自然とはかどる。負担を減らすことで生まれるのは、時間と気持ちのゆとり。

D-Ltype先着順・次期以降販売対象住戸
10,298万円
(3階・先着順販売住戸)
<ご返済例※1
頭金8万円・
ボーナス時30万円台
月々支払
19万円台
3LDK+WIC+FC+FS
専有面積: 70.24m²
(約21.24坪)
  • バルコニー面積:11.98m²(約3.62坪)(偶数階)次期以降販売対象住戸
  • バルコニー面積:12.36m²(約3.73坪)(奇数階)先着順・次期以降販売対象住戸
POINT
  • ランドリールーム
  • アウトポール設計
  • 全洋室4畳〜
  • リビング・ダイニングの奥行4.0m超
  • ウォークインクロゼット
  • ファミリークロゼット
  • ファミリーストレージ
  • FUTON収納
D-L TYPE
ファミリーストレージ
画像ポインター
廊下の一角に設けた収納スペースに、家族で使うモノをすっきり集約。動線上にあるため出し入れもスムーズです。
ランドリールーム
画像ポインター
洗う・干す・しまうを一カ所にまとめた設計で、家事の流れがスムーズに。効率的でストレスの少ない毎日をサポートします。
概念図

概念図

ファミリークロゼット
画像ポインター
家族の衣類や日用品を、まとめてすっきり。収納場所をひとつに集約することで、部屋の動線をシンプルにし、暮らしがさらに整います。
  • :収納
  • :床暖房
  • :通風
  • :採光
  • :アウトポール
  • WIC : ウォークインクロゼット
  • FC : ファミリークロゼット
  • FS : ファミリーストレージ
  • ※掲載の図面は偶数階になります。
    ※D-Lタイプの洋室(1)、洋室(2)は建築基準法の居室要件である採光規定 における緩和規定の適用を受けているため、床面において50ル クス以上照度を確保できる照明器具を設置する必要があります。
<ご返済例※1

D-Lタイプ 3LDK(306号室)/ 価格10,298万円をご購入した場合 / 頭金8万円・月々支払19万円台・ボーナス時30万円台

※●頭金8万円●借入金額10,290万円(月々借入元本10,290万円ボーナス時借入元本2,570万円)●返済期間:40年(元利均等返済)●月々返済額/199,614円(年12回)・ボーナス時返済額/ 399,448円●頭金以外に諸費用が必要になります。●引き渡し後月額で管理費、修繕積立金、インターネット使用料等がかかりますが返済例には含まれておりません。●提携金融機関/住信SBIネット銀行●融資限度額/500万円以上3億円以下●金利1.120%(変動金利・店頭金利3.525%より引き下げ幅2.475%。お借入期間を36年から40年でお借入れいただく場合は、お借入金利が年0.07%上乗せとなります。一定の条件があります。銀行の審査により適用が受けられない場合があります。予めご了承ください。)※適用される金利は融資実行時のものとなり、表示されている金利とは異なる場合があります。※上記融資概要は2026年4月現在のものです。金利情勢などにより融資内容が変更となります。詳しくは販売スタッフまでお問い合わせください。※お借入時(申込時)に満65歳以下(満66歳未満)、かつ完済時に満80歳未満となるように返済期間を設定いただきます。

〈推奨インテリアセレクト〉

Smart Life機能的でスマートな暮らし

水回りの動線や充実の収納量で、効率的に家事ができる。
機能にこだわる、シンプルな空間に。

〉〉〉詳しくはこちら

御殿町の空を眺める I type

空を眺めるビューバス
最上階の“御殿”

開放感あふれるビューバスやアイランドキッチンなど、
贅沢な設えを随所にちりばめ、最上階という特別な場所に、
心地よさを描きました。

Itype次期以降販売対象住戸
3LDK+WTC+WIC
専有面積: 98.25m²
(約29.72坪)
  • バルコニー面積:14.89m²(約4.50坪)
POINT
  • 角住戸
  • アウトポール設計
  • ビューバス
  • アイランドキッチン
  • 全室独立型洋室5畳〜
  • 折上げ天井と曲面壁
  • ウォークスルークロゼット
  • ウォークインクロゼット
  • FUTON収納
  • 洗面台ダブルボウル
  • 大型ユニットバス
I TYPE
アイランドキッチン
画像ポインター
住まいの真ん中にあるオープンキッチンは、料理をしながら、空間とつながる感覚をくれる場所。家族の声が届き、笑い声が広がる—そんな幸せなにぎわいが、毎日の風景になります。
折り上げ天井と曲面壁
画像ポインター
高さと奥行きのある天井が、開放感と空間の広がりを演出。意匠性のある曲面壁は、やわらかな上質感を空間にプラスします。
ビューバス
画像ポインター
外の景色を楽しめる窓付きバスルーム。日常のひとときを、心ほぐれる時間に変えてくれます。
ダブルボウル洗面
画像ポインター
2人並んで使えるゆとりある洗面台。忙しい朝もストレスなく、スムーズに身支度ができます。
  • :収納
  • :床暖房
  • :通風
  • :採光
  • :アウトポール
  • WTC : ウォークスルークロゼット
  • WIC : ウォークインクロゼット

〈推奨インテリアセレクト〉

Fashionableホテルライクな暮らし

間接照明やアイランドキッチンとあわせて日常の中に贅沢を。
気分が高揚するようなホテルライクな空間に。

〉〉〉詳しくはこちら

効率的に暮らす B2 type

自由なスペースが広がると
暮らしの幅はもっと広がる。

60㎡台ながら全洋室4畳以上を確保し、ファミリークロゼットまで備えた高効率な設計。室内をすっきりと保ちながら空間を自在に使い分けることで、日々の暮らしに多彩な広がりをもたらします。

B2type先着順・次期以降販売対象住戸
8,898万円
(2階・先着順販売住戸)
3LDK+FC
専有面積: 60.39m²
(約18.26坪)
  • バルコニー面積::10.98m²(約3.32坪)
POINT
  • アウトポール設計
  • 全洋室4畳〜
  • ファミリークロゼット
  • FUTON収納
  • リビング・ダイニングの奥行4.0m超
B2 TYPE
FUTON収納
画像ポインター
布団の収納に適した奥行き設計を採用。寝具や衣装ケースも無駄なく収まり、季節用品や衣類をスッキリと整理できます。
トールスライドウォール
画像ポインター
天井まである引き戸の採用により、隣接する洋室をリビングの拡張スペースとして利用可能。シーンに合わせて空間を自在に使い分けられます。
スライドウォール使用例 概念図

スライドウォール使用例 概念図

ファミリークローゼット
画像ポインター
家族の衣類や日用品を、まとめてすっきり。収納場所をひとつに集約することで、部屋の動線をシンプルにし、暮らしに整いをもたらします。
  • :収納
  • :床暖房
  • :通風
  • :採光
  • :アウトポール
  • FC : ファミリークロゼット
  • ※B2タイプの洋室(1)、洋室(3)は建築基準法の居室要件である採光規定における緩和規定の適用を受けているため、床面において50ルクス以上照度を確保できる照明器具を設置する必要があります。

〈推奨インテリアセレクト〉

My Art Style自分だけの好きにこだわる暮らし

多彩な収納をそなえ、飾る・しまうが自在に。
アウトドアやアートまで、自分の好きにこだわる空間に。

〉〉〉詳しくはこちら

ミニマルに満喫する E type

ムダをそぎ落とすと、
暮らしは軽やかになる。

必要なものがきちんと収まり、動線にムダがないと、
毎日がうまく回りはじめる。
2LDKのなかにWICやSCをさりげなく備えたこの間取りは、
コンパクトでも心にゆとりが生まれる住まい。

Etype先着順・次期以降販売対象住戸
8,698万円
(9階・先着順販売住戸)
2LDK+WIC+SC
専有面積: 55.16m²
(約16.68坪)
  • バルコニー面積:9.06m²(約2.74坪)
POINT
  • 角住戸
  • アウトポール設計
  • 全洋室4畳〜
  • リビング・ダイニングの奥行4.0m超
  • ウォークインクロゼット
  • シューズクロゼット
E TYPE
シューズクロゼット
画像ポインター
玄関まわりをすっきり保てる、収納力のあるスペース。靴だけでなく外出まわりのアイテムもまとめて収まります。
ウォークインクロゼット
画像ポインター
ひと目で見渡せて、出し入れもスムーズ。収納力と使いやすさを兼ね備えた、身支度もはかどる収納です。
  • :収納
  • :床暖房
  • :通風
  • :採光
  • :アウトポール
  • WIC : ウォークインクロゼット
  • SC : シューズクロゼット

〈推奨インテリアセレクト〉

Café Break香りを楽しむ暮らし

必要なものがきちんと収まると、暮らしを満喫するゆとりが生まれる。
毎朝のコーヒーの香りも楽しめる空間に。

〉〉〉詳しくはこちら

※掲載の間取り図・平面図は図面を基に描き起こしたものであり、実際とは異なる場合があります。

SPACE DESIGN

すごしかたファースト。

住まいの価値を決めるもの。それは、部屋数や広さだけではありません。
最も大切なのは、その空間で毎日、どのような時間をすごせるか、ということ。
家族の存在を程よく感じられる開放的なリビング・ダイニング・キッチンや、見せる楽しさと機能的な使いやすさのメリハリ、
くつろいだ時間をすごせるデザインなど、めざしているのは、すごしかたに根ざしたネクスト・スタンダードの空間です。

フレキシブルリビング

すっきり開放的で心地よく、
暮らしにフィットするリビング。

空間をすっきりと仕立て、可動する引き戸で時間や季節、
多様な暮らしのスタイルにフィットします。

※Fr1、Fr2、Gr、H、Iタイプを除く

イニシアラウンジ三田/ 3LDK コンセプトルーム リビング・ダイニング、洋室(2)写真(2023年4月撮影)

イニシアラウンジ三田/
3LDK コンセプトルーム リビング・ダイニング、
洋室(2)写真(2023年4月撮影)

連窓サッシ

メインバルコニー側の窓面には、外の陽光をふんだんに取り込む連窓サッシを採用。スライドウォールが連窓サッシ間の壁にきれいに収まる設計となっているため、ひとつながりの窓ならではの高い開放感を楽しめます。

※Fr1、Fr2、H、Iタイプを除く

概念図

概念図

概念図

概念図

「アウトポール」設計を採用

アウトポール設計により、バルコニー側居室のコーナー部に柱が出ないため、空間はすっきりとした印象。効率の良いスクエアな空間で、家具のレイアウトがしやすいのもメリットです。

※部屋内に配管スペースがある場合があります。
※F1、Fr2タイプを除く

コスモスイニシア和光ギャラリー/リビング・ダイニング、洋室(2) 写真(2023年3月撮影)

コスモスイニシア和光ギャラリー/リビング・
ダイニング、洋室(2) 写真(2023年3月撮影)

概念図

概念図

シーナリーキッチン

リビングに美しく映え、
心地がいいキッチン。

料理することが楽しくなる。
キッチンにいる時間が居心地がよくなるように。
リビングから見て家具のような美しさに。

コスモスイニシア和光ギャラリー/キッチン、ダイニング写真(2023年3月撮影)

コスモスイニシア和光ギャラリー/キッチン、
ダイニング写真(2023年3月撮影)

コンロ前の開放と
美しいレンジフード

閉鎖的になりがちなキッチンは、コンロ前の壁をなくし、美しいレンジフードを採用することで、料理しながらの景色や空間のつながり、キッチン全体の美しさを大事にしています。

ゆとりの
キッチンワークトップ

お料理をしやすくするカギは、食材を切ったり、材料を混ぜたりするキッチンカウンターの作業スペースです。
シンクサイズはそのままに、レイアウトを工夫して作業スペースを広げ、スムーズにお料理ができる広々としたワークトップを確保しました。

イニシアラウンジ三田/3LDKコンセプトルーム・キッチン写真(2022年1月撮影)

イニシアラウンジ三田/3LDKコンセプトルーム・
キッチン写真(2022年1月撮影)

概念図

概念図

概念図

概念図

スムースドレッサー

朝をスムーズにする、
快適な身支度動線。

忙しい朝、二人が並んで使える洗面や、
すっきりとしまえる収納。
リビングから出入りができる家事動線で
身支度を快適・スムーズに。

※Fr1、Fr2、H、Iタイプを除く

イニシアラウンジ三田/3LDKコンセプトルーム・洗面写真(2022年1月撮影)

イニシアラウンジ三田/3LDKコンセプトルーム・洗面写真
(2022年1月撮影)

概念図

概念図

概念図

概念図

オフセット(偏心)洗面ボウル

洗面ボウルをサイドに寄せて配置。ボウルの横にまとまったスペースがあるので、小物や化粧品などの置場としても使えます。

参考写真

ドライヤー収納

鏡裏収納にパイプとS字フックを設置して、ドライヤーをスムーズに収納できるようにしました。

参考写真

ゴミ袋ホルダー

ワンタッチで開く収納扉の裏にホルダーを設置。袋が掛けられ、ゴミが簡単に捨てられます。

参考写真

鏡裏面収納

裏はすべて収納スペース。ドライヤー置場も用意しました。

参考写真

ヘルスメータースペース

洗面化粧台下のデッドスペースを生かした収納スペースです。

※ヘルスメーターのサイズによっては収納できないものもあります。

しまうモノを、大切にできる収納。

収納空間を立体的にとらえ、効率的に賢くしまえる。
また、収納内の可変性を高めることで、持ち物の変化に
フィットできる収納です。

image photo

image photo

FUTON収納

「布団の収納場所が足りない」
「布団がしまえる中段がほしい」
そんな声にお応えし、布団のほかにも様々な
用途に使える収納です。

※Eタイプを除く

イニシアラウンジ三田/3LDKコンセプトルームFUTON収納写真(2022年1月撮影)

イニシアラウンジ三田/3LDKコンセプトルーム
FUTON収納写真(2022年1月撮影)

概念図

概念図

概念図

概念図

玄関収納

靴が効率良く収められるのはもちろん、傘掛けや小物入れも用意しています。

※E、Grタイプはシューズクロゼット採用。※シューズクロゼットのあるタイプには「傘掛け」「スリッパ掛け」「小物入れ」の設置はありません。

参考写真
参考写真

可動棚底板

一番下の底板を外すことができ、ベビーカーやブーツ・ゴルフバッグなどの長物もしまえます。サイズによっては収納できない場合があります。

参考写真

スリッパ掛け

玄関収納の扉裏にスリッパをしまっておくことができます。

参考写真

玄関収納下部コンセント

照明やアウトドア用品の充電等に便利です。

参考写真

小物トレー

印鑑やボールペン置きに便利です。

※掲載の写真はイニシアラウンジ三田3LDKコンセプトルームを2021年1月に撮影したものです。家具・調度品等は販売価格に含まれておりません。
※コスモスイニシア和光ギャラリ-はすでに撤去済みで、モデルルームのご見学はできません。

空間設計について

HOME DECORATION SERVICE

8種類からお好みを選べる
インテリアセレクト

専有部の壁面の色や素材などを、あらかじめご用意したパターンからセレクトできる
「ホームデコレーションサービス」をご用意。
さまざまな暮らし方に合わせ、素材感やカラーのマテリアルを追求した8種類からお選びいただけます。

※セレクトには申込期限およびセレクトできる内容・対象箇所に制限があります。詳しくは販売担当にご確認ください。
※掲載の素材写真は計画段階のものであり、今後変更となる場合があります。

HOME DECORATION SERVICE

Ethical

自分にも環境にも優しい暮らし
image photo

image photo

朝時間をたのしむ
充実した日常
素材にこだわる
エココンシャスな暮らし

マテリアル写真

Café Brake

香りを楽しむ暮らし
image photo

お気に入りのパンやコーヒー
生き生きとした観葉植物
優しい香りに
満たされた暮らし

マテリアル写真

My Art Style

自分だけの好きにこだわる暮らし
image photo

昔から聞いている音楽に
こだわりのファッション
大好きなものを飾って楽しむ
自分だけの特別な暮らし

マテリアル写真

Primitive

時間を綴る暮らし
image photo

image photo

旅をするたびに
生まれる思い出
非日常が日常の
アクセントになる暮らし

マテリアル写真

Self Decoration

自分でカスタマイズする暮らし
image photo

お気に入りのグッズを
自分らしくディスプレイ
好きなものに囲まれた空間で
アクティブに生活を謳歌する暮らし

マテリアル写真

Japandi Style

凛とした空気が心地よい暮らし
image photo

木の温もりや洗練された家具
自然な調和と
静寂の美しさを感じる
心が安らぐ暮らし

マテリアル写真

Fashionable

ホテルライクな暮らし
image photo

ファッションを楽しむように
インテリアをスタイリング
トレンドカラーを取り入れた
上質で優雅な暮らし

マテリアル写真

Smart Life

機能的でスマートな暮らし
image photo

生活に便利な機能や
アイテムにこだわった
シンプルで快適な空間
賢くゆとりのある暮らし

マテリアル写真

※左上:キッチン腰壁面タイル/左下:キッチン腰壁面/右上:玄関アクセントクロス/右下:LDアクセントクロスエコカラット
※H・Iタイプは設置面が異なります。詳しくは販売担当へご確認ください。

STYLE

インテリアのプロが手がけた
スタイルで、
お気に入りの空間に。

新しい暮らしを彩るインテリアスタイル。インテリアのプロの提案から選んだり、相談したりお気に入りの空間に仕立ててください。

MODEST
GRACE
MELLOW
MODEST

シンプルながら洗練された空間へ

アースカラーで構成されたソフトな空間をベースに、
きめ細かく配慮された繊細な素材感が静かに主張する、
シンプルながらも洗練されたスタイル。
ナチュラルな中にモダンな印象を演出します。

GRACE

気品ある居心地を感じさせる空間へ

朝夕の陽光で表情を変化させるブラックウォルナットの床材に、
深緑をアクセントに効かせた、
ミニマライズされたクラシックスタイル。
気品ある落ち着きを演出します。

MELLOW

新しさの中に懐かしさをあわせ持つ空間へ

白とダークウォルナット色のコントラスト空間に、
ブロンズやマットブラックを差し込んだ、
モダンとクラシックを合わせ持つ気取らないスタイル。
高感度な上質感を演出します。

※階数により、ご注文期限がございます。詳しくは販売員にお尋ねください。
※掲載の写真は、「イニシアラウンジ三田」展示コーナー・モデルルームを撮影(2022年5月)したものとなり、サンプルです。
※実際の色調につきましてはサンプルコーナーでご確認ください。