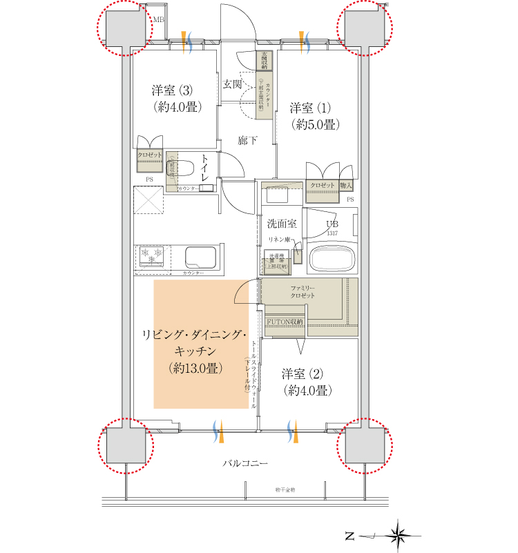
B2 type
先着順・次期以降販売対象住戸
60.39m²
(約18.26坪)
バルコニー面積::10.98m²(約3.32坪)
3LDK+FC

- :収納
- :床暖房
- :通風
- :採光
- :アウトポール
- FC : ファミリークロゼット
- ※掲載の間取り図は図面を基に描き起こしたものであり、実際とは異なる場合があります。※窓ガラスの種類・種別については、各階平面図をご参照下さい。
- ※B2タイプの洋室(1)、洋室(3)は建築基準法の居室要件である採光規定における緩和規定の適用を受けているため、床面において50ルクス以上照度を確保できる照明器具を設置する必要があります。