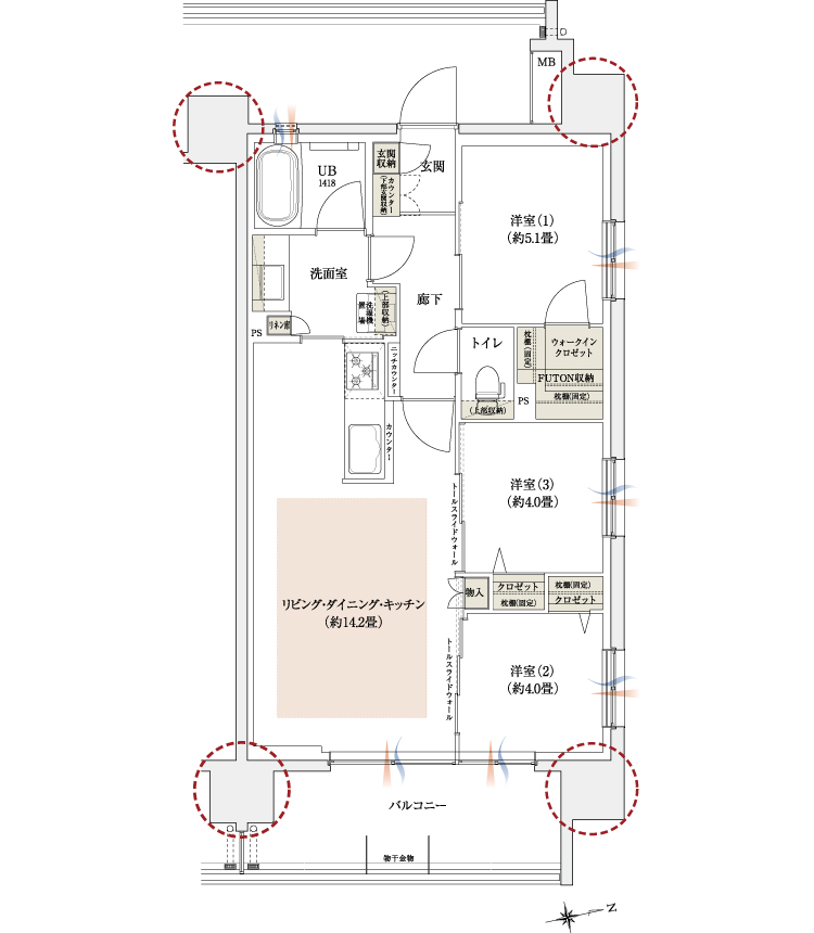
F type
先着順・第3期1次販売対象住戸・次期以降販売住戸
63.13m²
(約19.10坪)
バルコニー面積:9.54m²(約2.89坪)
3LDK+WIC

- :収納
- :床暖房
- :通風
- :採光
- :アウトポール
- WIC : ウォークインクロゼット
