ポートレートモード(縦置き)表示でご覧ください。

資料請求 来場予約
  • 現地Aタイプモデルルームのリビングダイニングキッチン(2026年4月撮影)

    現地Aタイプモデルルームの
    リビングダイニングキッチン(2026年4月撮影)

  • 現地周辺航空写真

    現地周辺航空写真

  • 外観(2026年3月撮影)

    外観(2026年3月撮影)

  • 共用部エントランス(2026年3月撮影)

    共用部エントランス(2026年3月撮影)

【堂々竣工/即入居可】

2026年4月11日(土)より建物内モデルルーム公開開始
4月28日(火)、4月30日(木)および5月7日(木)、
5月12日(火)~5月14日(木)は休業いたします。
4月29日(水)および5月1日(金)~5月6日(水)、
5月8日(金)~5月11日(月)は営業いたします。
ACCESS 阪急「南茨木」駅徒歩3分。
「大阪梅田」駅直通
「ACCESS」を見る

阪急京都線「南茨木」駅(徒歩3分(東出口)/約233m/2024年10月撮影)

LOCATION 駅近でありつつ、
緑もすぐそばに。
「LOCATION」を見る

元茨木川緑地(徒歩4分/約320m/2024年10月撮影)

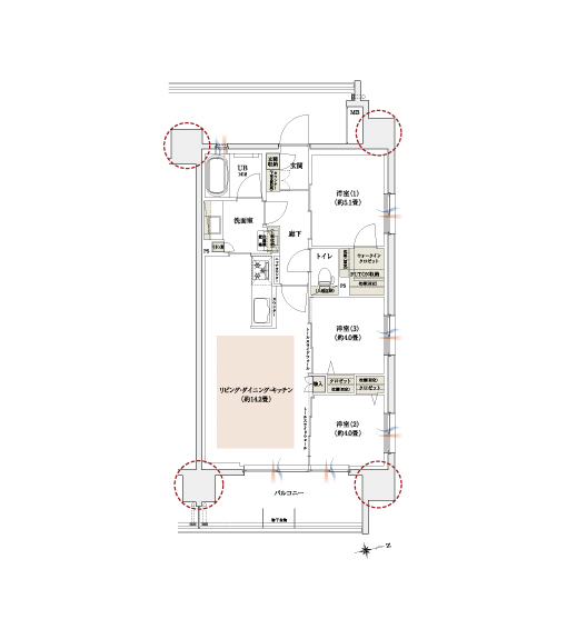
PLAN ひとりでも、ふたりでも
1LDK38m²台~3LDK70m²台の
プランバリエーション
「PLAN」を見る

image photo

DESIGN 時を重ねるほど、
愛着深まる住まい
建築デザインの
「RESIDENCE」を見る

共用部エントランス(2026年3月撮影)

QUALITY 過ごしやすさが叶う。
居心地と、快適性
「QUALITY」を見る

Ctypeモデルルーム リビング・洋室(3)

元茨木川緑地(徒歩4分/約320m/2024年10月撮影)

元茨木川緑地(徒歩4分/約320m/2024年10月撮影)