PLAN
この巣まいには、
帰ってきたくなる理由と
出かけたくなる理由があります。
仕事が終わったらすぐ「家でゆっくりしたい」と思えるような、はやく帰りたくなるような空間をめざしました。それでいて、アクティブに出かけたくなる空間も意識しています。
プランの魅力概念図
※物件全体のすべてのタイプを合わせた設備・仕様を
表現している物であり、
タイプによって
対応していない設備・仕様がございます。
各タイプで対応している設備・仕様については
各間取り図をご確認ください。
プラン図鑑
帰ってきたくなる理由
採用
天然木の温かみ
寛ぎのひとときを温もりで包むためのこだわり。それは、見た目にも美しい突板フローリングの採用でした。裸足で歩いた際に天然木の質感を愉しめ、リラックス感を高めます。
1
2
1, 2:image photo
すぐそこキッチン
料理をしながら会話したり、お酒を楽しみながら追加の料理を作ったり、家ごはんを楽しくするために。キッチンとダイニングの距離が近く、効率的な配置の「すぐそこキッチン」プランもご用意。
1
2
1:F2タイプ部分図 2:F2タイプ ダイニング・キッチン(2026年4月撮影)
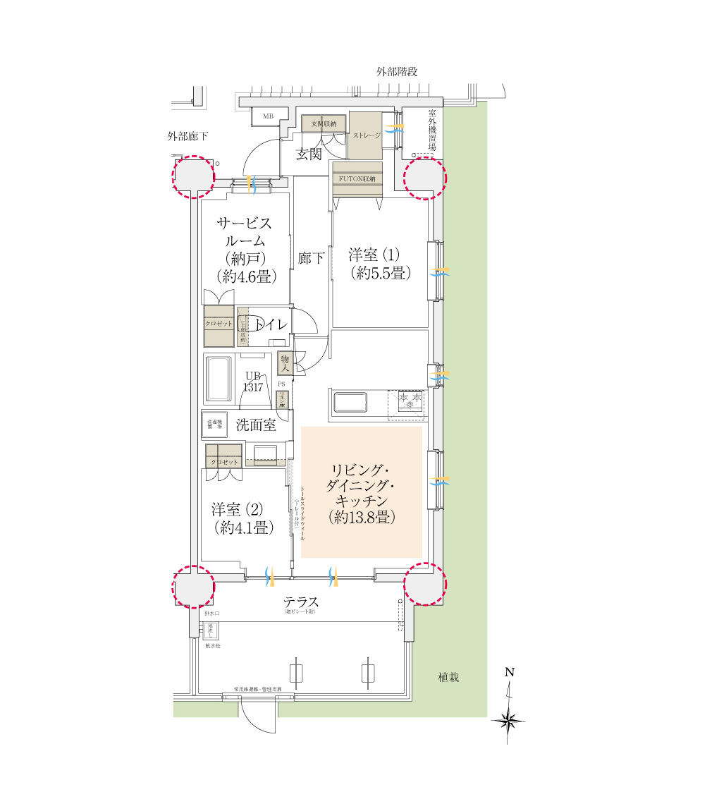
回遊性のある家事動線
家事をパッと済ませて、寛ぎの時間をゆっくりと過ごせるように、家事を効率的にするプランをご用意。家事動線を考え、回遊性をプラスすることで、スムーズに家事を行えます。
1
2
1:image photo 2:F1タイプ部分図(成約済)※掲載のF1タイプは、F2タイプと間取りの再現性がございます。
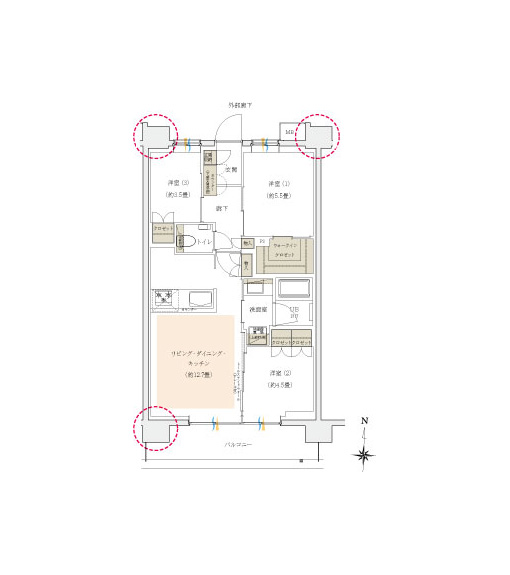
大型犬と暮らせるテラス
家で愛するペットが待っていると思うと、早く帰りたくなりませんか?「イニシア大田糀谷」では、ペットと一緒に暮らせるだけでなく、1階のテラス付き住戸では、大型犬の飼育も可能です。
1
2
1:B2tタイプ部分図 2:image photo ※ペットの飼育については管理規約・使用細則の規定を遵守していただきます。※大型犬の飼育は1階住戸のみとなり、出入りは専用庭からのみとなります。詳細は管理規約・使用細則をご参照ください。
出かけたくなる理由
採用
キャリーケースも
楽々収められる収納スペース
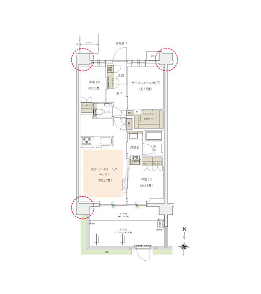
空港とターミナル駅に近い場所だからこそ、思い立った時にいつでも気軽に出かけられるように。FUTON収納などキャリーケースも収納できるような広めの収納を全タイプに確保しました。
1
2
3
1:image photo 2:F1タイプ部分図(成約済)※掲載のF1タイプは、F2タイプと間取りの再現性がございます。 3:B2タイプ部分図 ※タイプによって収納スペース、位置、サイズが異なります。
広々クロゼット
出かける前の衣類のコーディネート時間をもっと楽しくするために。衣類をズラリと収納できる大型クロゼット付きプランをご用意。お出かけ気分を高めます。
1
2
1:B2タイプ部分図 2:image photo
連窓サッシ
朝起きてカーテンを開くと、大きく高く広がる窓からやさしい光が部屋の中にさし込む。大きく伸びをして、朝食をとって、健やかな気持ちで一日がスタートします。
1
2
1:イニシアラウンジ三田/ 3LDK コンセプトルーム リビング・ダイニング、洋室(2)写真(2023年4月撮影) 2:B2タイプ部分図
PLAN 間取り
2LDK+S(納戸)~3LDKまでの
多彩な間取り
- : 収納
- : 床暖房
- : 通風
- : 採光
- : アウトポール
- WIC : ウォークインクロゼット
※B2tタイプの洋室(1)は、建築基準法の居室要件である採光規定における緩和規定の適用を受けているため、床面において50ルクス以上照度を確保できる照明器具を設置する必要があります。
※常用兼避難・管理用扉より、テラスを介して外部への出入りが可能です。なお、利用方法等は管理規約に従います。
※At・B1t・B2t・B3t・Et・G1t・Htタイプのみ
※ペットの飼育については管理規約・使用細則を厳守していただきます。
※大型犬の飼育は1階住戸のみとなり、出入りは専用庭からのみとなります。詳細は管理規約・使用細則をご確認ください。
B2tタイプリビング・洋室2・テラスイラスト
- : 収納
- : 床暖房
- : 通風
- : 採光
- : アウトポール
「すぐそこキッチン」。
F2タイプ ダイニング・キッチン(2026年4月撮影)
- 2LDK+S(納戸) / 3LDK
空間設計
個性に合わせて柔軟にフィットする、「コスモスイニシア」オリジナルの多彩な空間アイデア。
好きなものやライフスタイルは暮らす人によってさまざま。その人らしい暮らしを空間に描き出せるよう、シンプルかつフレキシブルな住空間を追求しました。
コスモスイニシア和光ギャラリー/
リビング・ダイニング、洋室(2)(2023年3月撮影・分譲済)
すぐそこキッチン
※F1、F2、G1、G1t、G2、H、Htタイプ採用
しまえる棚もすぐ横にすぐそこスタイル
キッチンとダイニングの動線がひとつになり、配膳や片付けがスムーズに。
すぐ横の家電ラックで、必要なものにすぐ手が届きます。
“すぐそこ”の工夫で、空間にも家事にもゆとりが生まれるスタイルです。
F1タイプ リビング・ダイニング・キッチン完成予想CG
※掲載の完成予想CGは図面を基に描き起こしたものであり、実際とは多少異なる場合があります。
※家具・調度品・オプション等は販売価格に含まれておりません。
※掲載のF1タイプリビング・ダイニングキッチン完成予想CGは、F2タイプと間取りの再現性がございます。
POINT 01
配膳も片付けも、
くるりと振り向くだけ。
ダイニングテーブルを配せば
キッチンから振り向く動作程度で、
配膳・片付けがスムーズに。
無駄のないレイアウトで、
毎日の家事がぐっとはかどります。
POINT 02
よく使う家電も、すぐそこに。
キッチン・食卓からすぐ手が届き、
空間に馴染む仕立てのコンセント付き家電ラック。
自然な流れで料理の手際がよくなる、
効率的なキッチン空間を追求しました。
POINT 03
空間に溶け込む、
家具のようなキッチン。
美しいタイルや上質な天板、
隠れたレンジフードなど、
細部にまでこだわった意匠が、
インテリアと調和します。
機能美とデザイン性を両立した、
暮らしに寄り添うキッチンです。
イニシアラウンジ三田/ 2LDKコンセプトルーム/
ダイニング・キッチン写真(2025年4月撮影)
料理も団らんも。
シーンで変わる暮らし方
スタイル
インテリアのプロが手がけた
スタイルで、
お気に入りの空間に。
新しい暮らしを彩るインテリアスタイル。お気に入りの空間に仕立ててください。
シンプルながら洗練された空間へ
アースカラーで構成されたソフトな空間をベースに、
きめ細かく配慮された繊細な素材感が
静かに主張する、
シンプルながらも洗練されたスタイル。
ナチュラルな中にモダンな印象を演出します。
※掲載の写真は、「イニシアラウンジ三田」展示コーナー・モデルルームを撮影(2022年5月)したものとなり、サンプルです。
※実際の色調につきましてはサンプルコーナーでご確認ください。
HOME DECORATION ホームデコレーション
8種類からお好みを選べる
インテリアセレクト(有償)
専有部の壁面の色や素材などを、あらかじめご用意したパターンからセレクトできる「ホームデコレーションサービス」をご用意( 有償)。さまざまな暮らし方に合わせ、素材感やカラーのマテリアルを追求した8種類からお選びいただけます。
※セレクトには申込期限およびセレクトできる内容・対象箇所に制限があります。詳しくは販売担当にご確認ください。
-
Ethical自然にも環境にも優しい暮らし
-
Café Break香りを楽しむ暮らし
-
My Art Style自分だけの好きにこだわる暮らし
-
Primitive時間を綴る暮らし
-
Self Decoration自分でカスタマイズする暮らし
-
Japandi Style凛とした空気が心地よい暮らし
-
Fashionableホテルライクな暮らし
-
Smart Life機能的でスマートな暮らし
※左上:アクセントタイル/左下:エコカラット/右上・右下:アクセントクロス
※性能表示内容は変更になる可能性がございます
※性能表示内容は変更になる可能性がございます
※共同住宅の住棟全体の性能を示すものであり、各住戸の性能を示すものではありません。
