C type
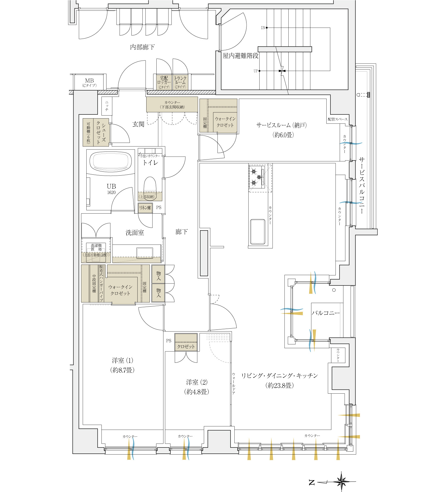
104.17m²
(約31.51坪)
トランクルーム面積:0.34m²・
宅配ロッカー面積:0.34m²を含む
宅配ロッカー面積:0.34m²を含む
バルコニー面積:3.90m²(約1.17坪)
サービスバルコニー面積:3.81m²(約1.15坪)
2LDK+S(納戸)+2WIC+SC(2〜4階)
先着順住戸

- :収納
- :通風
- :採光
- WIC : ウォークインクロゼット
- SC : シューズクロゼット
- ※掲載の間取り図は図面を基に描き起こしたものであり、実際とは異なる場合があります。※窓ガラスの種類・種別については、各階平面図をご参照下さい。
南西角を活かした
2面開口の100m²超プラン
建物西側が道幅約6.5mの御幸町通に面したイニシア京都御所南でも、
さらに開放感を感じられるプランがCタイプ。
角住戸の特性を活かした2面開口プランの上、
100㎡超の住戸面積を確保したプランニングが魅力的。
モデルルームプランにもなっているので、
マンションギャラリーでご体感いただけます。
外観完成予想CG
風情を感じるバルコニー
Cタイプのバルコニーは、
縁側と中庭のようなつくりになった
京の風情を感じることができる設計に。
夜風を感じながら、少しお酒を飲んだり、夕涼みをしたり。
暮らしとライフスタイルにゆとりをもたらしてくれます。
Cタイプモデルルーム:リビング・バルコニー
(2024年10月撮影)