

憧れの海外ホテルで過ごすような高揚感と
洗練を住まいに
取り入れる
リノベーションマンションシリーズ。
一邸一邸にこだわり抜き、
ただ一人のために用意された特別な
空間を提供します。
住まうことが非日常の体験となり、
同時に日常そのものが豊かに変わっていく。
それは、住まいでありながら人生をアップグレードする
「あなた専用のスイートルーム」。
ここだけの唯一無二の暮らしが、
あなたを待っています。


RELAXING
& EXCITING


寛ぎと高揚感
ディテールにこだわり、
考え抜かれたデザイン性の高い空間。
その寛ぎの時間と高揚感は、
まるで旅で出会った最高のホテル。


BEGINNING
WITH
BEDROOM


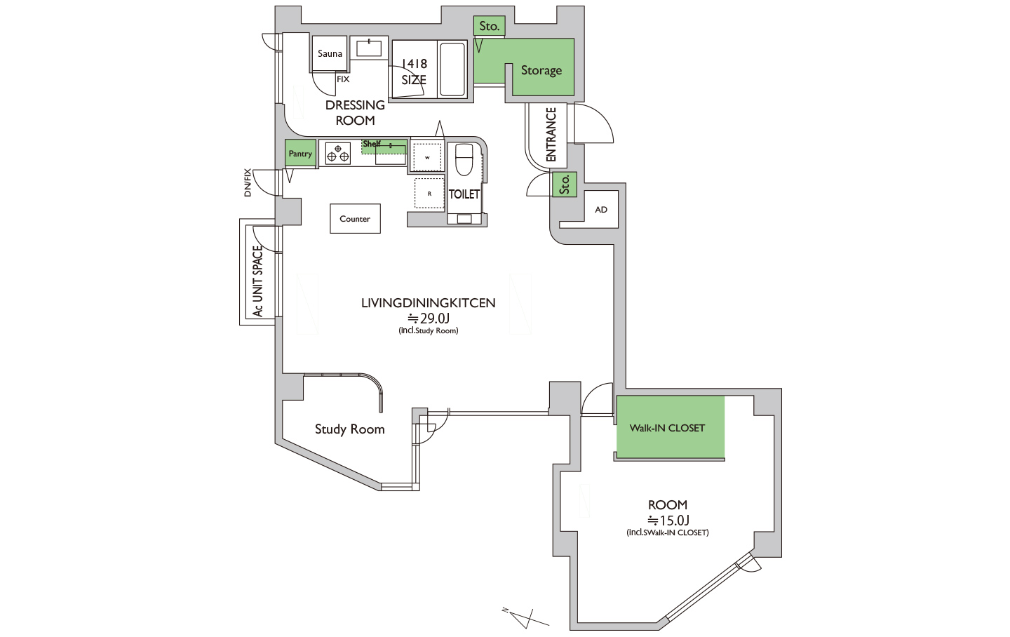
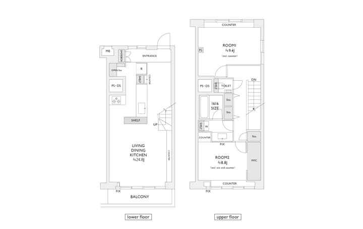
ベッドルームからはじまる
生活の中でも大切にしたい、睡眠の時間。
だからこそベッドルームの機能性はもちろん、
在り方や過ごしやすさから考える。
辿り着いたのは、バスルームから
ベッドルームへとつながるオープンな間取り。


GLASS
PARTITION

開放感のある
ガラスパーティション
居室を区切りながらも空間全体に
一体感を感じさせる、透明なパーティション。
隠してしまいがちな寝室や浴室を見せることで、
変わる生活への美意識。


SPACIOUS
KITCHEN
& DINING


広々とした
ダイニングキッチン
ダイニングから眺める、
仕切りのない美しい調理スペース。
毎日そこに立つだけで
幸せな気持ちになれる、魅せるキッチン。


CLASSY
BATHROOM

クラッシーバスルーム
日常を忘れさせてくれるような
ガラス張りのシックなバスルーム。
一日の始まりや締めくくりを、
心からリラックスできる
最高に贅沢なひとときに。


WITH SELECTED
FURNITURE & ART

コーディネートファニチャー
&アート
この空間のためだけに、
インテリアコーディネーターが
選んだ特別な家具と
IMA GALLERYのアート写真で
海外のデザイナーズホテルを演出。
※対象となる家具とアートについては物件により異なります。詳しくはスタッフにお尋ねください。


ORIGINAL
AMENITY


オリジナル
アメニティグッズ
厳選されたアメニティグッズや、
今治タオルを取扱う
「伊織」とのコラボレーションで
作られたオリジナルタオル・バスローブ。
住んだその日から、
ホテルクオリティの生活を。


それが

※掲載の写真はすべて当社リノベーション事例です。現在は販売を終了しております。
ARCHIVE
アーカイブ
HARAJUKUベルテ原宿(2025年販売済)
VIEW MOREMINAMI AOYAMAグランドメゾン南青山(2021年販売済)
VIEW MORESANJO-KARASUMA三条高倉アーバンライフ(2021年販売済)
VIEW MOREMOTO-AZABU秀和元西麻布レジデンス(2017年販売済)
VIEW MOREFUDOMAEパーク・ノヴァ目黒不動前(2016年販売済)
VIEW MORENANPEIDAIシルフィード南平台(2017年販売済)
VIEW MORETAKANAWA高輪4丁目パークマンション(2017年販売済)
VIEW MORENISHI-AZABUグレイス西麻布(2017年販売済)
VIEW MOREAKASAKAスカイプラザ赤坂(2018年販売済)
VIEW MOREKICHIJOJIルネ吉祥寺(2018年販売済)
VIEW MOREJINGUMAEパーク・ノヴァ神宮前(2019年販売済)
VIEW MOREMEGURO目黒台マンションC棟(2019年販売済)
VIEW MORE
CREATIVE MEMBERS
プロジェクトメンバー
TRANSIT GENERAL OFFICE INC.
トータルプロデュース
duffle
インテリアデザイン
MOTO-AZABU
FUDOMAE / NANPEIDAIS.A.W.S
インテリアデザイン
TAKANAWA
NISHI-AZABU / AKASAKAdesign office IMA
インテリアデザイン
KICHIJOJI

KNOT
インテリアコーディネート
MOTO-AZABU / FUDOMAE
ナナイロ
グラフィックデザイン
東京ピストル
コンセプトブック編集
IMA Gallery
アートフォトキュレーション
伊織
タオル
Manami Takahashi
写真
MOTO-AZABU / FUDOMAENAN
NANPEIDAI / TAKANAWA / NISHI-AZABU












































































































