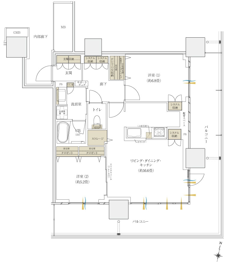
70M type
70.11m²
(約21.20坪)
バルコニー面積:36.50㎡(約11.04坪)
2LDK+ストレージ

- :収納
- :通風
- :採光