TOP
客室エリア
お食事
校舎の中
ご予約
予約する
予約する
客室エリア
Guest cabin
4beds cabin
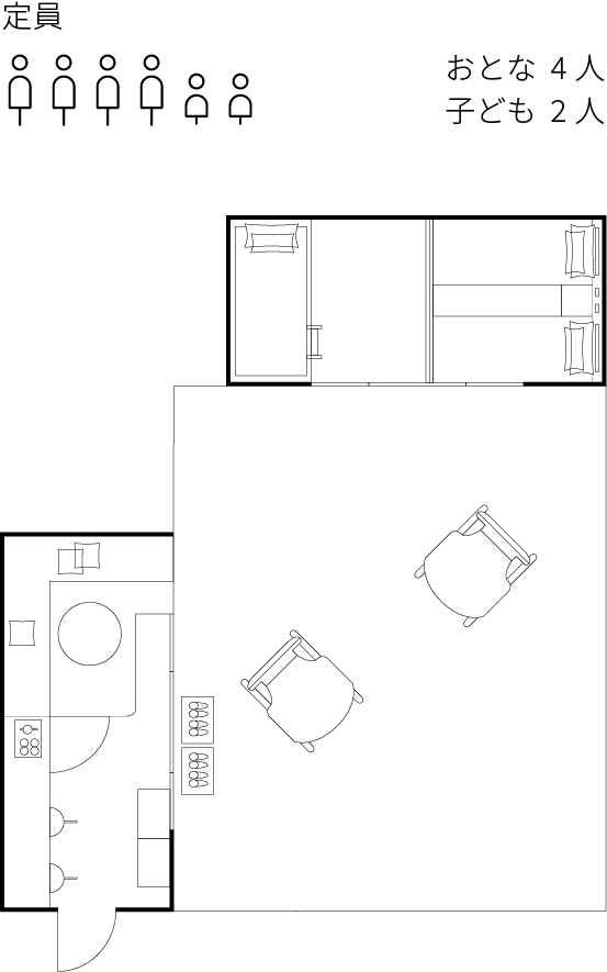
4beds cabinは6区画のご用意があります。寝室棟とリビング棟が分かれた宿泊居室となっております。グループやファミリーでのご利用にお勧めです。寝室のベッドは平置き2台、2段ベッド1台となっており、平置きベッドはシングル2台の「セパレートタイプ」とキングサイズ1台の「キングタイプ」からお選びいただけます。お子さまをお連れの場合は大人4名+お子さま2名の合計6名までのご利用が可能です。
※お子さまをお連れの場合は添い寝のみのお承りとなっております。
2beds cabin
2beds cabinは9棟のご用意があります。寝室とリビングが一体型のシンプルでコンパクトな宿泊居室のためカップルでのご利用などにお勧めです。ベッドはシングル2台の「セパレートタイプ」とキングサイズ1台の「キングタイプ」からお選びいただけます。お子さまをお連れの場合は大人2名+お子さま1名の合計3名までのご利用が可能です。
※お子さまをお連れの場合は添い寝のみのお承りとなっております。
CONTENTS
お食事
Food
MORE
校舎の中
Inside the school
MORE
ご予約
Reservation
MORE
CAMPAIGN
GALLERY
CONTACT
info-etowa-kisarazu@ci.cigr.co.jp
0438-53-7086
(受付時間09:00 ~ 20:00)
※休館日は留守電設定となります。