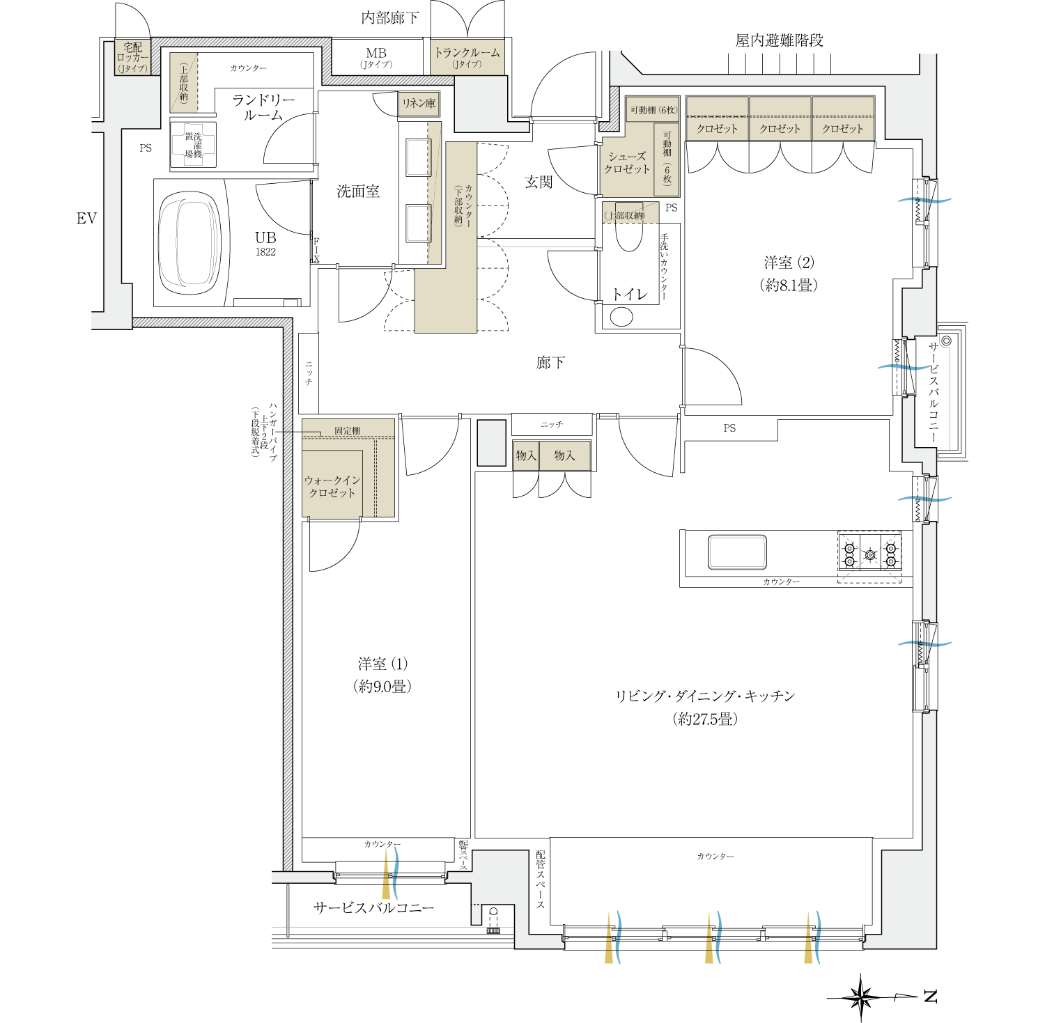
最上階プレミアム住戸
J type
115.24m²
(約34.86坪)
トランクルーム面積:0.69m²・
宅配ロッカー面積:0.38m²を含む
宅配ロッカー面積:0.38m²を含む
サービスバルコニー面積:2.97m²(約0.89坪)
2LDK+WIC+SC
先着順住戸・あと1邸
販売価格:24,990万円(税込)
<504号室>
2026年1月6日(火)~
建物内モデルルーム家具付
販売開始!!
モデルルーム使用期間:
2026/1/6(火)~ご契約まで
※現況引渡となります。
※上記期間内は建物内モデルルームとして使用致します。
※家具内容:全室照明、全室カーテン、ダイニングテーブルセット、ソファ、サイドテーブル、テレビボード等
最上階北東角住戸
駐車場確約可
住戸専有面積115.24m²のプレミアムプラン
玄関、洋室に豊富な収納スペースを確保
約27.5畳のリビング・ダイニング・キッチン
ダブルボウルの洗面室と洗濯物を見られないランドリールーム
洋室(2)にはプライバシー性を高めるシリンダー錠を採用
1822サイズを確保したゆったりしたバスルーム

- :収納
- :通風
- :採光
- WIC : ウォークインクロゼット
- SC : シューズクロゼット
- ※掲載の間取り図は図面を基に描き起こしたものであり、実際とは異なる場合があります。※窓ガラスの種類・種別については、各階平面図をご参照下さい。
POINT1
プレミアム住戸ならではの設備仕様
センタードア
リビングと廊下を隔てるセンタードアには紙漉キハタノの黒谷和紙を採用しています。
カウンター
他のタイプよりも広めにカウンターを設けているので、小物を置いたり、花を生けたりと、空間の装飾に使えます。
キッチン天板
[シーザーストーン]
[シーザーストーン]
約90%が天然鉱物で作られた美しく、且つ高い耐久性と低い吸水率を誇るシーザーストーンを採用しています。
食器洗浄乾燥機
[ミーレ]
[ミーレ]
高い洗浄力を誇りながら高い衛生性能にも定評のあるミーレ社の食器洗浄乾燥機を採用しています。
下足入れ
玄関にはシューズクロゼットとカウンタータイプの下足入れを設置しています。
エアコン
リビングのエアコンは空間をすっきりさせる天井カセット型エアコンを採用しています。
洗面化粧台[ダブルボウル]・天板[シーザーストーン]
洗面ボウルを2つ設置し、多忙な朝でも2人同時に使用できます。また天板はキッチンと同じシーザーストーンを採用しています。
トイレ手洗いカウンター[シーザーストーン]・
信楽焼手洗器「利楽」
信楽焼手洗器「利楽」
デザイン性と機能性を兼ね備えた手洗いボウルを設置。天板はキッチンと同じシーザーストーンを採用しています。
POINT2
プライバシーを守ることができる内部廊下
エレベーターホールから各住戸までプライバシーを守り、雨・風・日差しの影響も受けない内部廊下設計を採用しています。
POINT3
2面開口の角住戸
北側と東側に開口部が確保された角住戸は通風・採光に優れ、開放的な住空間を実現します。
5階平面図
POINT4
専用のトランクルーム・宅配ロッカーを設置
不在時に荷物を受け取れる個別の宅配ロッカーと物置として使用できるトランクルームを設置しています。
POINT5
屋内平置駐車場を確保
電気自動車用充電設備がある屋内平置駐車場を確保しています。