ニュースリリース2011年以降のニュースをみる
| ~永住品質の新基準を追求する分譲マンションのメインブランド「INITIA(イニシア)」~ 「Fukuoka テーマハウス構想」プロジェクト、『イニシア鳥飼』販売開始 多様なライフスタイルに対応、全19戸に13タイプの住戸バリエーション。 |
| 平成19年11月19日 |
|
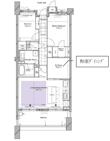
(株)コスモスイニシア(本社:東京都千代田区、代表取締役社長:町田公志)は、九州福岡都市圏での分譲マンション・戸建住宅事業において、お客様の多様化する価値観やライフスタイル、趣味嗜好に合った「暮らし」や「住まい方」を実現いただくための住まいづくりを、「Fukuoka テーマハウス構想」プロジェクトとして展開しております。 このたび、「Fukuoka テーマハウス構想」の一環として、分譲マンション「イニシア鳥飼」(福岡市中央区鳥飼3丁目。総戸数19戸。)の第1期9戸の販売を、12月上旬(予定)より開始いたします。 当マンションでは、「LIFE STYLING(ライフスタイリング)」をコンセプトに、13タイプの住戸バリエーションを特徴としております。具体的には、約20 畳のリビング・ダイニングやルーフバルコニーに「スカイガーデン」(庭)を設置、さらにゲスト用としても使える寝室を用意しホームパーティが催せる「パーティ」プランのほか、「ジャパネスク(和室ダイニング)」、「バー」、「ペット」などをテーマとした、個性豊かな住戸プランを提案しております。 また、福岡都市圏の分譲マンションで初めて、(株)バルス(本社:東京都渋谷区、代表取締役社長:髙島郁夫)のライフスタイルブランド「BALS TOKYO」(HP アドレス:http://www.balstokyo.com)が、モデルルームや販売事務所の総合的なコーディネート・監修を行っております。マンションのお引渡し後には、ご入居者に対し、「BALS TOKYO FUKUOKA」における家具等の紹介割引販売を予定しており、自分らしい住まいや暮らしをサポートします。 なお、計画地は、福岡市中央区に位置し、地下鉄空港線「西新」駅から徒歩9分という都心の利便性と、大濠公園まで徒歩10分という住宅地としての閑静さを併せ持ち、便利で快適な環境が整ったエリアに立地しています。 |
|
||||
|
|



