|
コスモスイニシアグループでマンション・ビル等の建物総合管理事業を手掛ける(株)コスモスライフ(本社:港区、社長:渡邉好則)では、単身赴任者や長期的なホテル滞在者に向けた法人向け賃貸マンション『エルプレイス(L *1-Place)』シリーズを展開しています。このたび、同シリーズにおいて、特にエグゼクティブ向け仕様として計画した『FLATS東陽』(所在地:東京都江東区/総戸数:145戸、うち賃貸募集対象 70戸/設計・施工:(株)竹中工務店)を平成 20年 9月に竣工し、10月より入居者募集を開始いたしましたので、お知らせいたします。
当マンションは、竹中工務店の社宅跡地に建つ、同社が免震構造を採用した新工法で施工、スタイリッシュなデザインの鉄筋コンクリート造・地上 12階建の新築マンションで、コスモスライフが建物管理とともに、このマンションを一括で借り上げ、法人向けに賃貸するサブリース事業として展開いたします。
- 【『FLATS東陽』の特徴】
-
当マンションは、単身赴任者に多い、特に役職者の入居を想定しており、そのニーズに合わせ、免震構造による高い安全性、ゆったりとした居住空間、フィットネス・大浴場などの充実した共用施設を兼ね備えた、高級感のあるエグゼクティブ向け仕様としています。また、栄養バランスにも配慮した食事サービスを提供するなど、ビジネスホテルとも短期賃貸マンションとも異なる、新しいタイプの法人向け賃貸マンションです。
- ≪共用施設≫
建物1階は入居者へのサービススペースとして、明るく開放感あふれる食堂や、ゆったりくつろげる大浴場 *2、有酸素系運動のできる本格的なマシンを揃えたフィットネスルームなどを設置し、健康面や快適性においても充実した施設となっています。
- ≪専有室内≫
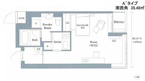
32.78~35.48㎡のゆとりある居室空間は、落ち着いたトーンで統一され、明るく解放的なオープンキッチン、ゆったりサイズのバスルームを設置。日常生活に必要なベッドや机、椅子などの家具のほか、IHクッキングヒーターや冷蔵庫、電子レンジ、洗濯乾燥機、エアコンなどの家電も標準セットし、入居当日からすぐに快適な生活をお過ごしいただけます。
- ≪サービス≫
フロントマネージャー(管理員)が常駐し、受付カウンターで郵便・宅配便の受け取りやクリーニングの取り次ぎなどの日常的な生活サポートサービスを提供します。また、不規則になりがちなビジネスマンの健康管理にも配慮、特に利用者の年齢層が高いことを想定し、メタボリックシンドロームを意識し、カロリー控え目の家庭的かつ栄養バランスを考えた献立で、朝食と夕食のサービスをご用意しています(有料)。
さらに、ヘルスケアサービスとして、マンション専用のフリーダイヤル回線を引き、こころと身体の健康について 24時間 365日、電話相談が可能です。ご本人のみならずご家族の健康や介護についてまで、看護師や保健師、ソーシャルワーカーなど経験豊富なフタッフが懇切丁寧にお答えします。また、ご相談内容によっては、専門医師との 3者通話や病院への紹介状の発行も可能です。
- ≪立地≫
丸の内・大手町などビジネス街にも至便な東京メトロ東西線「木場」駅から徒歩 6分、同線「東陽町」駅から徒歩 7分に立地し、単身赴任者の生活利便性や役職者のビジネスニーズにも適したエリアです。
『FLATS東陽』外観
- 【企業の“現代社宅事情”に適合する新タイプの法人向け賃貸マンションを提供】
近年、維持管理費のコスト削減などの理由から企業の社宅の自社保有率が低下している一方で、福利厚生や単身赴任者のための社宅ニーズが高いという現状があります。特に、食事のサービス、コミュニケーションの場も兼ね備え、企業、ご本人、ご家族も安心できる施設やサービスに対する要望は高まっています。単身赴任は役職者の方々も多く、その大半は自社寮に入居するか、ホテルやマンスリーマンションなどに入居しています。
コスモスライフでは、このような企業の社宅事情を踏まえ、企業の独身寮・単身赴任寮としてご利用いただけるビジネス対応型食事サービス・家具付き賃貸マンション『エルプレイス』シリーズを平成 19年 3月より展開し、都内や横浜エリアなどで現在6プロジェクトを運営しています。このたびサービス提供を開始した『FLATS東陽』は、これまでの『エルプレイス』にない、特にエグゼクティブ向け仕様として計画し、企業の社宅需要の山場となる異動時期の年末、来年春を見据えてのオープンとなります。
コスモスライフでは、これまで培った『エルプレイス』でのノウハウを結集し、今後もお客様のニーズに合わせビジネスをサポートする「安心・安全で快適な住まい」の実現に向けて取り組んでまいります。
*1 L=LIFE(毎日・暮らし)
*2 男性のみ利用可能
- 【『FLATS東陽』共用施設】
-
 受付

食堂

大浴場

フィットネスルーム
- 【『FLATS東陽』居室】
-

天井までのハイサッシュと スタイリッシュな内装

オープンキッチン

バスルーム

「マルチキャリアシステム」を導入し、インターネット環境が選択可能
 間取り例
- ■設備概要
-
| 1.食堂 |
| |
・提供日 |
月曜日~金曜日の朝食(6:30~9:00)、夕食(19:00~23:00) 土曜の朝食(7:00~10:00) |
| |
・予約 |
必要なし |
| |
・精算方法 |
Suica決済システム(カード 1枚 Suica、PASMO、ICOCAで可能) |
| |
・メニュー |
日替わり定食、麺類、カレー、アルコール販売 等 |
| 2.フィットネスルーム |
リカンベントバイク、クロストレーナー等 |
| 3.大浴場 |
24時間入浴可能(清掃時間除く) ※男性のみ利用可 |
| 4.自動販売機コーナー |
清涼飲料、アルコール類 |
- ■ サービス概要
-
| 1.受付カウンターサービス |
| |
・郵便、宅配便の受け取り |
・衣類クリーニング取り次ぎ(別途有償) |
| |
・室内クリーニング受付(別途有償) |
・郵便、宅配便の受け取り |
| |
・無料貸し出し(自転車、掃除機、空気清浄機、 ズボンプレッサー、アイロン、布団乾燥機) |
・貸布団受付(別途有償) |
| |
・タクシー手配 |
・レンタカー紹介 |
| |
・引越し業者紹介 |
・ホテル紹介 |
| 2.その他 |
| |
・エクストラベッド:ご家族の宿泊の際にお貸し出しいたします。 |
| |
・エントランスセキュリティ:Suicaもしくは PASMO、ICOCAで開錠できます。※登録手続き必要 |
| |
・ヘルスケアサービス:こころと身体の健康相談を 24時間 365日、専用のフリーダイヤル回線で承ります。※提携先の(株)保健同人社にてサービス提供 |
- ■専有室内
-
| ・居室 |
月曜日~金曜日の朝食(6:30~9:00)、夕食(19:00~23:00) 土曜の朝食(7:00~10:00) |
| ・浴室 |
サイズ 1216タイプ、浴室乾燥機能付 |
| ・標準セット家具家電 |
セミダブルベッド、ライティングデスク、チェア、液晶テレビ、デスクライト、電話機、パーソナルチェア、サイドテーブル、冷凍冷蔵庫、電子レンジ、洗濯乾燥機、シャワートイレ |
| ・キッチン |
IHクッキングヒーター(2口コンロ) |
| ・給湯 |
セントラル方式 ※コックをひねれば、いつでもお湯が出るシステム |
| ・エアコンエアコン |
全室完備 |
| ・テレビ |
地上デジタル放送、BS・CS放送 視聴可能 |
| ・インターネット設備 |
全室、光ファイバー導入 |
- ■物件概要
-
| 物件名 |
エルプレイスシリーズ FLATS東陽 |
| 所在地 |
東京都江東区東陽 3-25-1 |
| 交通 |
東西線木場駅徒歩 6分、東陽町駅徒歩 7分 |
| 敷地面積 |
2,166.60㎡ |
| 延床面積 |
8,036.97㎡ |
| 総戸数 |
全 145戸(うち賃貸募集対象は 70戸) |
| 駐車場 |
15台(一般車輌 13台、身障者駐車スペース 1台、管理用 1台) |
| 構造 |
RC造免震構造 |
| 階数 |
地上 12階 |
| 利用形態 |
法人向け寮 |
| 竣工 |
2008年 9月 16日 |
| 入居開始 |
2008年 10月 1日 |
| 共用部 |
食堂・厨房・大浴場・フィットネスルーム・自動販売機コーナー |
| 部屋面積 |
32.78㎡~ 35.48㎡ |
| 設計・施工 |
株式会社竹中工務店 |
| 賃貸条件 |
賃料:134,000円~150, 000円/月、管理費:20, 000円/月、食堂維持費:15, 000円(別途消費税)/月、入館金:340, 000円、保証金(預かり金):340, 000円、普通賃貸借契約:2年間(更新可)、更新料:170,000円 ※別途、毎月定額の給湯費 4,000円(別途消費税) |
| 家具家電 |
セミダブルベッド、ライティングデスク、チェア、液晶テレビ、デスクライト、電話機、パーソナルチェア、サイドテーブル、冷凍冷蔵庫、電子レンジ、洗濯乾燥機、シャワートイレ |
| 備考 |
・インターネットマルチキャリアシステム導入
・各室の電話・電気 ・水道は直接契約・住込管理員と通勤管理員による 365日管理、クリーニングサービス、宅配預かり等
・ヘルスケアサービス
・食事提供あり 月曜日~土曜日 ※土曜日は朝食のみ |
| 設計・施工 |
株式会社竹中工務店 |
- 株式会社コスモスライフ 会社概要
-

| *住所: |
東京都港区赤坂 5-1-33 |
| *事業所: |
本社/東京支社/西東京支店/東京東支社/千葉支店/横浜支社/町田支店/北関東支社/大宮支店/関西支社/大阪支店/京橋支店/京都支店/神戸支店/九州支店/シーエルポート世田谷 |
| *代表取締役社長: |
渡邉 好則 |
| *設立: |
1976年5月1日 |
| *事業内容: |
| (1)マンション総合管理事業 |
(2)ビル総合管理事業 |
(3)厚生施設総合管理事業 |
| (4)建設営繕事業 |
(5)警備事業 |
(6)アフターサービス代行事業 |
|
| *グループ: |
(株)コスモスイニシア (株)コスモスモア (株)ライフクリーンサービス |
| *資本金: |
5億1990万3千円 |
| *売上高: |
293億7百万円(2008年3月期) |
| *経常利益: |
21億 22百万円(2008年 3月期) |
| *従業員数: |
3,088名(2008年 3月末現在) |
| *管理実績: |
分譲マンション 2,103件 123,068戸 賃貸マンション 298件 11,276戸 ビル 102件/厚生施設等 123件/学校施設 36件
※部分管理含む(2008年 3月末現在) |
|